センチュリー21成ハウジング > (戸建(売買))地域から探す > 昭島市 > 昭島市田中町1丁目 中古戸建 > 物件詳細
「昭島市田中町1丁目 中古戸建」
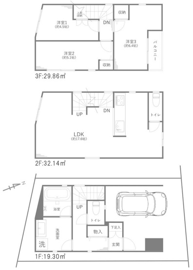
プライバシーが守られやすい、2階リビング♪
オール電化住宅のご紹介です♪
環境に優しい太陽光発電システム搭載♪
様々な広さの全居室収納は物を綺麗に整理できるのでお薦めです♪
不動産を求める上で、何かご不明な点などございましたら、
お気軽にご質問ください♪
不動産購入で失敗をしないためにも、
気になることは全て解決しておきましょう(^_^)











(※元利均等方式 金利5.00%まで ※返済年数5~50年まで入力できます)
(※ボーナスは年2回で計算しています。1000万円まで入力できます)
(※物件購入時、その他諸費用が発生する場合がございます)
| 所在地 | 東京都昭島市田中町1丁目 | ||
|---|---|---|---|
| 交通 | |||
| 間取り/詳細 | 3LDK/ | 建物面積(坪数) | 81.30㎡(24.59坪) |
| 価格 | 3,090万円 | ||
| 駐車場/月額料金 | 有/0円 | ||
| 土地の敷金/保証金 | -/- | 借地料/借地期間 | -/- |
| 土地権利 | 所有権 | 土地面積(坪数) | 52.02㎡(15.73坪) |
| 傾斜地部分面積 | - | 路地状敷地 | - |
| 私道負担面積/セットバック |
30.00㎡/無 私道負担割合 : 1/5 |
高圧線下面積 | - |
| 地目/地勢 | 宅地/平坦 | 接道状況 | 二方(南西 公道 20.0m 間口 5.3m)(北 公道 2.9m 間口 5.2m) |
| 建ぺい率/容積率 | 60%/300% | 用途地域 | 準住居 |
| 都市計画 | 市街化区域 | 種別/構造 | 中古一戸建/木造 |
| 階建 | 2階建 | 築年月(築年数) | 2023年 3月 (築2年) |
| 総区画数/販売区画数 | 1区画/1区画 | 向き | 北 |
| 現況 | 空家 | その他の法令上の制限 | - |
| 取引態様/引渡時期 | 仲介/相談 | 建築確認番号 | - |
| 物件番号 | 99786503 | 取引条件の有効期限 | 2026年01月29日 |
| 設備条件 |
|
||
| 取扱会社 |
|
||
| QRコード |
このQRコードを読み取ることで、スマホでも物件情報を確認できます。 |
||
※地図上に表示される物件の位置は付近住所に所在することを表すものであり、実際の物件所在地とは異なる場合がございます。