センチュリー21成ハウジング > センチュリー21成ハウジングのブログ記事一覧 > ☆当社おすすめ物件☆武蔵村山市伊奈平5丁目 中古一戸建て

☆当社おすすめ物件☆武蔵村山市伊奈平5丁目 中古一戸建て

カテゴリ:★おススメ物件特集★

☆当社おすすめ物件☆

武蔵村山市伊奈平5丁目 中古一戸建て




おはようございます。
センチュリー21成ハウジングの池島です。
今日は午後から強めの雨が降り出すそうです(*_*)
お買い物などは午前中に済ましておきたいですよね・・・!!
こんなお天気だとお子様も室内遊びばかりでは
退屈してしまいますよね(:_;)
お買い物もできてお子様の遊び場も確保できる所・・・!!
ダイエー武蔵村山店などいかがでしょうか♪
ダイエー武蔵村山店へいらした際にはぜひ、
当社センチュリー21成ハウジングへお立ち寄りください(^^♪
アットホームな雰囲気の当社スタッフが
ご来店をお待ちしております(*^^*)


今日ご紹介する物件はこちら↓↓↓
☆当社おすすめ物件☆
武蔵村山市伊奈平5丁目 中古一戸建て


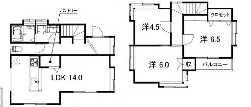
土地面積:106.03㎡
建物面積:73.11㎡
間取り:3LDK
交通:【昭島】駅バス12分
金額:1780万円

リノベーション戸建となります☆
・全床フローリング張替え
・キッチン、ユニットバス、洗面化粧台、トイレ交換
・ハウスクリーニング
・・・etc

詳しい詳細はこちら↓↓↓
≪ 前へ|★当社おススメ物件★東大和市中央2丁目 売地   記事一覧   ■■当社管理物件■■国立市富士見台一丁目 ドミールC 101号室|次へ ≫

池島 涼 最新記事



池島 涼

センチュリー21成ハウジングの池島涼と申します。何事も前向きに、お客様に満足していただけるような業務を心掛けております。

スタッフ情報を見る

トップへ戻る