武蔵村山市大南1丁目 中古一戸建て 2,480万円



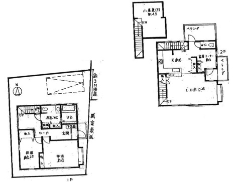
建物面積:97.50㎡ 土地面積:101.11㎡
西武拝島線「武蔵砂川」駅徒歩11分

こちらはリビングです!広さは12帖と広々しています(*^-^*)
南向きで日当り良好!室内とっても明るいです!

こちらはL字型のキッチンです!
家事導線が使いやすいのがポイント!!お子様と一緒に料理も出来たり、カウンターキッチンなのでリビングも見渡せます!

続いてこちらはお風呂です!
湯ったり1坪バスなので、お子様と一緒に入ったり、一人でゆっくり足を延ばして入ることもできます(*´▽`*)
こちらの物件はいつでも内覧可能です!お気軽にお問い合わせ下さい。↓↓↓
武蔵村山市大南1丁目 中古一戸建て 2,480万円














