■当社売出物件■武蔵村山市本町2丁目 新築一戸建て 1号棟
こんにちは!
センチュリー21成ハウジングの植です!
今日は当社売出物件のご紹介です!
所在地:東京都武蔵村山市本町2丁目
交通:八高線「箱根ヶ崎」駅 バス13分 長円寺 停歩5分
価格:2,980万円

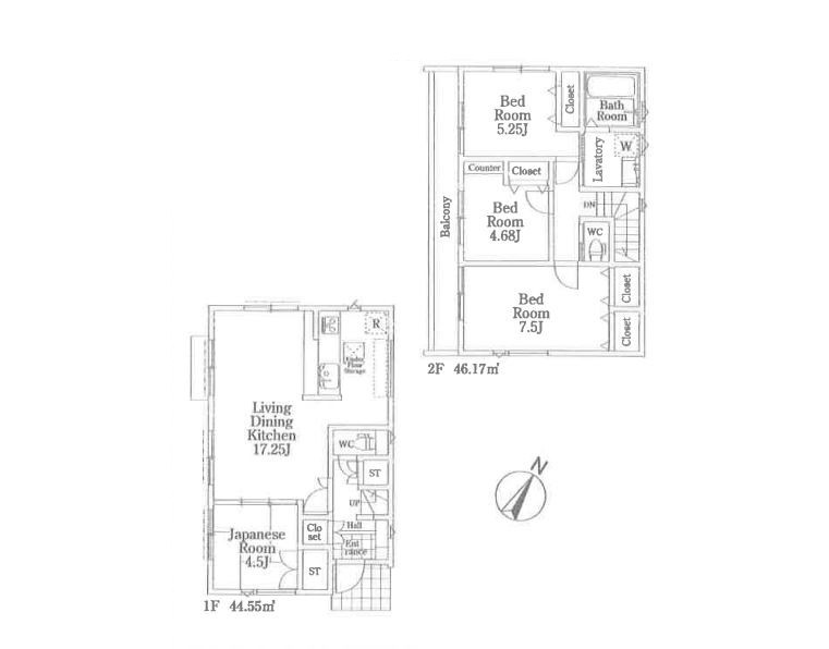
間取り:4LDK

ファミリーの方にお勧めの物件です!全室収納完備で充実の室内設備。学区域は第一小学校・第一中学校と通学しやすい場所に立地している物件です。
閑静な住宅地にあり、住環境・周辺環境も良好です!
東京都武蔵村山市本町2丁目 新築一戸建て 2,980万円の詳細は
こちらをクリック!!














